风貌别墅,堪称上海居住文明的瑰宝与时代名片。它不仅是居所,更是历史、土地与未来世代之间的一场深刻对话。

它们承载着城市的文化记忆与历史文脉。从石库门里弄的肌理,到红砖青砖的岁月痕迹,从Art Deco的装饰线条,到老虎窗与双坡顶的天际轮廓,风貌别墅将海派文化的百年风华凝聚于一砖一瓦之中。
抛开风貌别墅的地段、历史传承等外在因素,真正能让风貌别墅成为上海居住名片,或许符合现代居住的空间打造,才是风貌别墅最大的挑战。


它的出现,意味着真正兼具现代化奢阔生活体验与深厚历史传承的风貌别墅,终于从概念走进了现实。
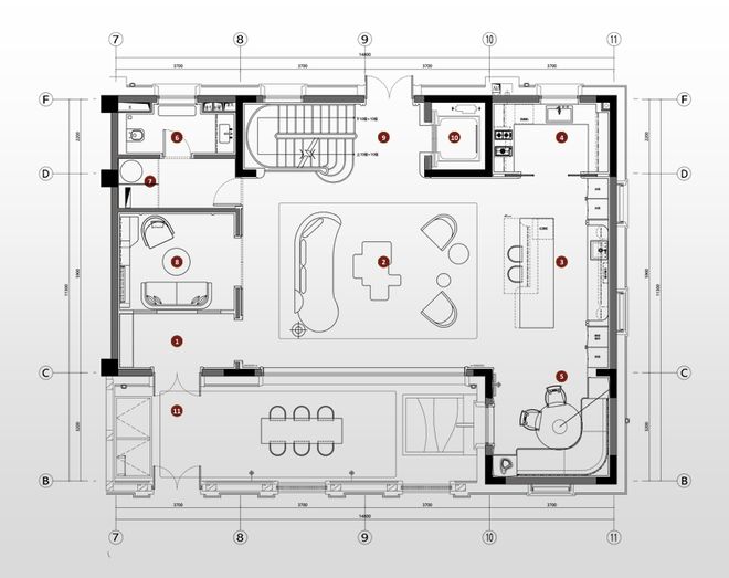
相比于市面上多数风貌产品仅能做到1.5-2开间,难以匹配当代高净值家庭对开阔感与通透性的要求,信安里·忻园,实现了真正意义上的“空间跨越”
其主力户型做到约360㎡建筑面积、4开间朝南、总体面宽约16米,堪比一线大平层的尺度感。

尤其值得一提的是建面约540㎡的楼王户型,更是以5开间朝南、约19.5米超大宽厅,刷新了市场对风貌别墅的空间认知。


更值得强调的是,这些空间内部极少承重结构柱,赋予业主极高的空间自由度,可根据家庭结构、社交需求、生活偏好进行灵活分隔与场景打造。

从私人艺术沙龙、家庭聚会厅到儿童活动区,真正实现“一厅多用,世代同堂”。
以往的风貌别墅地下空间,往往层高有限,普遍仅5-6米,相对可实现的功能比较单一。
而信安里·忻园则一举将地下层高提升至7.2米,大大增加了空间使用率!别墅的地下空间下面是双层车库层,共三层的地下空间,防潮性能进一步提升。

这不仅极大拓展了垂直维度的功能潜力,更在面积附赠层面实现了近乎“一比一”的震撼效果!
建面约280㎡户型,赠送面积可达约280㎡;建筑面积约460㎡的楼王,赠送面积甚至高达500多㎡。
这对开发商来说,大大增加了成本,所以这样的产品十分罕见。但是对于居住者来说,却是增加了地下空间的通透性,并且实现了更多的功能性。
它意味着生活想象力的彻底释放。业主可据此打造私人健身区、恒温酒窖、专业影音室、SPA疗愈空间、收藏画廊甚至子女兴趣工坊。

项目外立面并非简单模仿传统样式,而是通过对孟莎式屋顶、清水红砖外墙、传统石库门门头、老虎窗等元素的保留与转译,实现海派建筑语汇的当代延续。
它复刻了张爱玲笔下“常春藤公寓”的文艺肌理,将城市记忆转化为可感知、可触摸、可生活的日星空体育登录入口 星空体育在线官网常场景。

与其他风貌共用一堵分户墙不同的是,忻园的风貌别墅采用双层分户墙做法,每户之间没有共用墙。200mm厚度的墙体,中间还设置了100mm空腔,避免邻里的相互影响,带来舒适静谧的居住感受。

并且,忻园还是上海较早采用外墙PC板夹芯保温技术的风貌住宅,隔音的同时,保温防水性能更是优异。

为了呈现立面的精细化,项目更是运用了60多种定制砖,尽显品质感。在建筑的拐角处,延续现状并结合历史建筑中“拐弯抹角”的做法,把转角隅石优化为弧形。“上方下圆”的抹角设计,不仅体现了通行方便安全,也是一种谦和,更是一种传统美德,表达街坊邻里间和谐友善的氛围。


这种既尊重历史原貌、又坚决创新空间功能的做法,使得忻园不仅是一处“住的空间”,更成为值得传承的“文化资产”。
样板间的开放,不仅是一次产品的亮相,更是一场关于“如何做真正好的风貌别墅”的深刻对话,而这或许正是上海这座城市更新中最值得期待的声音。

当风貌别墅在黄浦、虹口等区域以“批量化”姿态涌入市场,老静安的信安里·忻园,却以一种近乎“例外”的姿态,重新定义了“何谓稀缺”。
它凭借前所未见的产品优势未开先火、客户蓄水充足,但究其根本——它真正稀缺的,远不止是产品。
这里是上海真正意义上的“城市心脏”,更是无数高净值人群心目中的“居住白月光”

☑️信达·信安里售楼处电线单元规划,全域建筑规模中,商业、办公及公共服务设施占比极高,住宅用地稀缺到堪称

☑️信达·信安里售楼处电线年来,新房供应量不超过1800套!而信安里·忻园所处的风貌别墅类别,更是这稀缺中的稀缺。近4年来唯一在售的风貌别墅,仅信安里·忻园!
与此同时,南京西路商圈百亿级税收、恒隆广场顶级租金表现,构成强大的资本外溢效应,不断推升居住资产价值——这不仅是居住,更是一种对稀缺文明资源的占有。


当购房者还在外围区域以更高单价购置风貌别墅时,忻园提供了一种新的价值选择——
得房率极高,最高附赠面积最高达约500㎡,实际使用单价相当于仅10万/㎡左右;
产品力全面提升,7.2米地下空间、3-5开间朝南、无柱宽厅,遥遥领先市场普遍标准!
一方面,延续了风貌别墅文化感、高级感,项目自带底蕴;另一方面,综合了风貌项目的低密度,整体容积率相对较低。

,地上两层+阁楼,屋顶用“老虎窗”的形式,既保留了海派原味,也提升了空间的舒适度。

设计更让业主获得了奢华私人会所般的体验。☑️信达·信安里售楼处电话:☑️

即便是双拼项目,也是大横厅加上庭院,宽敞明亮,阳光洒满每个角落。双拼项目间更是打造了双层墙面,增强了隔音效果。
老静安全域CAZ(中央活动区),这意味着这里是中心的中心,政府将投入大量资源进行城市更新和基础设施建设,用来提升该区域的商业、金融、文化和旅游功能,使其成为城市的核心和经济增长的引擎,进一步提升其在全球城市中的地位和影响力。

☑️信达·信安里售楼处电线亿元的财政收入,排在星空体育登录入口 星空体育在线官网全市第5;截至2023年,区级一般公共预算收入总量,静安连续第八年位列上海中心城区第一!

看看每年路边的时令花圃就知道,郁金香、朱顶红、北美冬青……绝对都是大手笔。
对于老静安来说,面积不大,只有7.62平方公里,但是这么点面积内,却集中了众多顶级资源。☑️信达·信安里售楼处电话:☑️

不断蜕变的南京西路商圈,顶奢商业恒隆广场、中信泰富,潮奢商业兴业太古汇,还有重奢最爱的张园等等;

【信达·信安里】位于老静安核心的康定路余姚路交汇口南侧,与经典的市中心别墅豪宅静鼎安邦府邸仅一条康定路之隔。
KING88购物中心、星方汇、889广场、开开广场、七彩里5个商场任君选择。

1公里范围内,地铁线号线号线的昌平路、隆德路、江苏路、静安寺等市中心地铁站都可步行到达。
免责声明:以上教育资源整理仅代表楼盘与学校的距离,该房屋所在项目暂未划分学区,开发商不对项目交房后所属学区、学校做任何承诺。教育资源分配或学校/学区划分以及学校的具体招生规则等请以政府相关主管部门、教育机构公开的最新信息为准。

华山医院、上海市儿童医院、第一妇幼保健院、华东医院等一流的医疗资源,都在信达·信安里周围。

曹家渡口袋花园、静安公园、美琪大剧院、上海展览中心等,为生活增添乐趣。
