预约来电尊享购房优惠,可预约案场内部销售人员,专业一对一热情服务,让您用专业眼光去买房。
龙樾合玺项目位于望京崔各庄板块,新望京高端住宅区,距离阿里新总部所在的中关村朝阳园约3公里,到望京SOHO所在的核心区也是同样的距离。
众所周知,望京率先享受两代发展红利,也成长为第二CBD,目前已接近饱和状态,未来的增长点将会在中关村朝阳园,而招商·龙樾合玺坐享两个板块的红利。

在此基础上,龙樾合玺售楼处电话:【官方】项目以精装修+高颜值+改善平层四居致敬区域发展,目前,项目已经开放实景样板区,公区、园林、大门、精装、地块等,全部所见即所得,也是区域内销量最好的项目之一。
可以看到龙樾合玺项目大胆的将一条完整归家动线上所有的细节,用实景示范区的方式,大大方方的展示给所有买房人。尤其是社区入口,香槟金+曲线+玻璃幕墙的造型组合,不仔细分辨以为走到了某五星级酒店的门口。
项目主打科技住宅,采用了德国进口的塑钢窗和香槟金色铝板。据说,塑钢窗的保温隔热性能更好。
采用点式建筑,即建筑之间密度较低,不仅使得阳光穿透性强,加长园林与室内空间的采光时间,而且实现多角度园林观景。
值得一提的是,室内采用了松下六恒系统:即新风、空调、调湿三大模块营造六恒环境。室内静音系统采用同排+隔音垫+电梯双墙。
室内配置也都是国际一线品牌,德系居多,如嘉格纳、唯宝、高仪、汉斯格雅等。
龙樾合玺售楼处电话:【官方】项目地上建面约8.5万平,其中公租房建面2.86万平,容积率2.5,建筑最高高度53.85米,销售限价8.8万/㎡,有套内7090限制。

龙樾合玺售楼处电话:【官方】项目项目共计规划15栋楼,10栋商品星空体育登录入口 星空体育在线官网房,户型为125㎡三/四居、155㎡四居、160㎡四居、175㎡四居,其中123㎡为主力户型,产品以中高端改善为主,共426套。
东北角还有5栋公租房,户型面积为93㎡--123㎡的两居、三居产品。用一个景观带进行了软隔离处理。


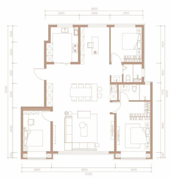
建面约125㎡的四居两卫,经典的LDK+X格局,“四叶草”的布局,南向三面宽,设置了一个主卧套房和一个次卧,北向一个次卧和一个书房。北侧的X空间是亮点,可以作为第二会客区,也可以作为书房,甚至和旁边的次卧打通变成大套房。

155㎡的四居两卫,各空间的尺度更大一些。书房面积约为10.15㎡,可做书房,也可做卧室。
此外,客厅面宽做到6m,餐客厅整体进深做到6.5m,形成了一个奢阔的餐客一体化空间,有利于家庭日常的交流、互动和亲朋聚会。

LDK一体化设计,因为进深拉长后,规避掉了入户看到餐桌的问题。4.5米面宽厨房,步入式衣帽区,双明卫三分离,人性化设计通透惬意。

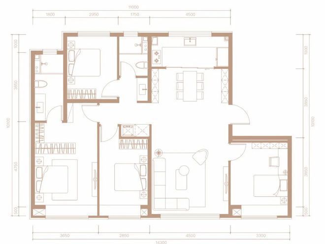
建面约175㎡四居两卫典型的“四叶草”布局,四个卧室在四个角,互不干扰。
主卧套房做了270°转角窗,奢适感全面提升。LDK一体化设计,客厅面宽做到了6.2米,餐客厅面积做到53.94㎡,这会是让高改客群最眼前一亮的一个空间。
预约来电尊享购房优惠,可预约案场内部销售人员,专业一对一热情服务,让您用专业眼光去买房。
