➢➢温馨提示——拨打400电话——听到嘀声后——输入分机号8888即可通话➢➢网上售楼中心—匠心钜制-恭迎品鉴-欢迎来电咨询-预约一对一讲解-请提前联系售楼处销售进行登记!

项目规划设计以人为本,在大城市的独特基底之上,孕育出高效网格道路系统、贴身商业街区、开放式全龄生态园林、三大功能会所等全维生活系统,通过科学合理的规划设计,能够促进城市空间的高效利用和优化布局,规划设计上更加注重人性化和舒适性,打造出更加美观、宜居的城市景观。在建设过程中注重节能环保,采用绿色建筑技术和材料,降低能源消耗和环境污染,为居民创造更健康、更舒适的室内外环境。

项目全面实施三星级绿色建筑,100%全装修设计、围护结构热工性能提高20%、建筑外窗传热系数降低20%,住宅节水器具用水效率达到等级1级,住宅建筑隔声性能达高要求标准限值,室内主要空气污染物浓度降低20%。所采用的绿色建筑技术能较好的融合健康建筑和超低能耗建筑相关技术项,体现技术融合性。

项目全部住宅实施健康建筑,达到银级要求。从空气、水、舒适、健身、人文的角度提出设计要求,采用低VOC室内装修材料,实现空气净化、水质定期检测,管道设置永久标识,设置健身步道、丰富的室外健身设施和交流场地、儿童游乐场地及老年活动场地。

项目装配式建筑装配率不小于76%,达到AA(BJ)级,且全面实施装配式装修。室内装修材料采用绿色产品和干式工法,可以提升材料利用效率,减少建筑垃圾和废材,装修材料更环保、更健康。室内各个空间按不同功能创建弯曲路径,利用行动时区域之间遮挡关系的变化,使不同区域自成一体,又勾勒出“景随人动”的自然流动感,推动空间、自然光线、人文闲居交融共生。

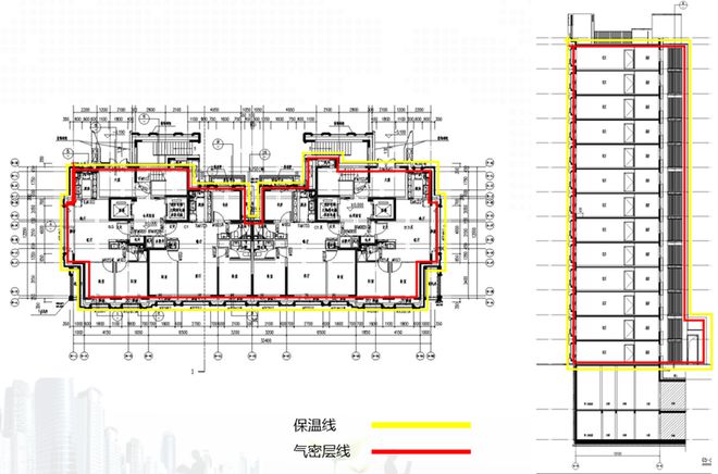
项目6#住宅楼和配套幼儿园为超低能耗建筑,采用性能化设计方法进行超低能耗建筑设计,其室内环境参数和能效指标参数满足超低能耗建筑的相关要求。设计基本原则星空体育登录入口 星空体育在线官网遵循被动优先,主动优化,合理利用可再生能源。

北京华润橡树湾售楼处电线销售(已认证)➢➢预约参观热线【售楼中心】➢➢温馨提示——拨打400电话——听到嘀声后——输入分机号8888即可通话➢➢楼盘基本信息介绍,地址,户型,价格,位置,医疗教育,商业交通配套➢➢网上售楼中心—匠心钜制-恭迎品鉴-欢迎来电咨询-预约一对一讲解-请提前联系售楼处销售进行登记!
特别声明:以上内容(如有图片或视频亦包括在内)为自媒体平台“网易号”用户上传并发布,本平台仅提供信息存储服务。
比亚迪星空体育登录入口 星空体育在线官网品牌及公关处总经理:我们基于规模化大量采购对供应商提出降价目标 非强制要求
站在城市的中央,向左走,是都市核心,向右走,是嘉陵江畔。在此停留,期待一个美丽的邂逅…….
幼儿园毕业第一天就去爬泰山,8岁小男孩452天登顶泰山18次,长大后想攀登珠穆朗玛峰
试管婴儿大乌龙:两对夫妻生下对方孩子!人生交换,双方决定合为一家...
【农业地理】农业地域类型,高考大概率不会再考了……图解中国农业分布,了解中国农业地图!
